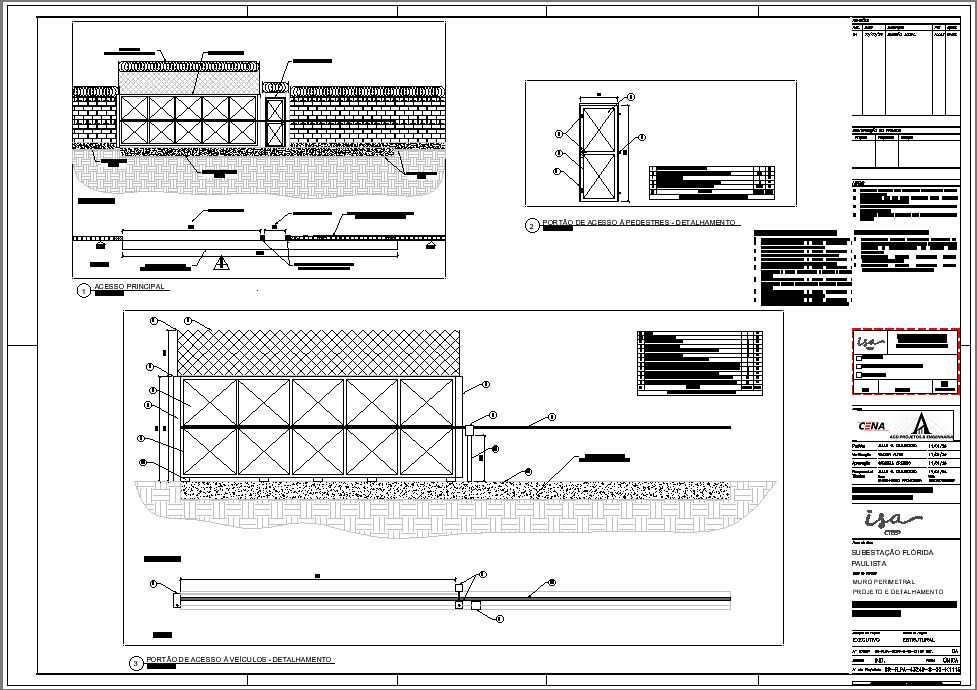
PROJETOS INSDUSTRIAIS
SUBESTAÇÕES - CTEEP

__________________

  • Municípios: Ilha Solteira, Flórida Paulista e Rosana/SP
  • Descrição: Execução de muro perimetral limítrofe para substações - Companhia de Transmissão de Energia Elétrica Paulista
  • Perímetro edificado: 1545m
  • Contratante: Land Soluções (CENA) 

 

  • Projetos Elaborados pela ACD Projetos & Engenharia:
    • Projeto de Estruturas em Concreto Armado
    • Projeto de Estruturas Metálicas
TERMINAL DE CARGAS - GOL

__________________

  • Município: Fortaleza/CE
  • Descrição: Aeroporto Internacional de Fortaleza, Terminal de Cargas - GOL Linhas Aéreas
  • Área edificada: 233m²
  • Contratante: Clutch Engenharia

 

  • Projetos Elaborados pela ACD Projetos & Engenharia:
    • Projeto de Estruturas em Concreto Armado
    • Projeto de Estruturas Metálicas
ETE CEAGESP I - SABESP

__________________

  • Município: Tatuí/SP
  • Descrição: Subestação elétrica da Estação de Tratamento de             Esgoto - ETE CEAGESP I.
  • Área edificada: 72m²
  • Construtora: KMG Construtora

 

  • Projetos Elaborados pela ACD Projetos & Engenharia:
    • Projeto Estrutural em Concreto Armado
OFICINA DE DISJUNTORES II - FURNAS CENTRAIS ELÉTRICAS

__________________

  • Município: São José da Barra/MG
  • Descrição: Estrutura para instalações de pontes rolantes
  • Equipamentos: Ponte rolante 5t x vão 21m x alt. 5m e 5t x vão           5m x alt. 8m
  • Projeto Base: Furnas Centrais Elétricas
  • Projetos Elaborados pela ACD Projetos & Engenharia*:
    • Projeto de Estruturas Metálicas - Levantamento de cargas

*Projeto elaborado como co-autor.

**Responsabilidade Técnica: Nascimento & Dias Engenharia.

PROJETOS COMERCIAIS
ESCOLA MAPLE BEAR

__________________

  • Município: Passos/MG
  • Descrição: Edificação comercial para uso escolar, franquia Maple Bear. 
  • Área edificada: 1.087²
  • Arquitetura: KSAA Arquitetura Multipotencial
  • Construtora: ACV Engenharia e Construtora
  • Projetos Elaborados pela ACD Projetos & Engenharia:
    • Projeto de Instalações Prediais Elétricas
    • Projeto de Instalações Prediais Hidrossanitárias​​​​​​​

*Projetos elaborados como co-autor.

**Responsabilidade Técnica: ACV Engenharia e Construtora.

QUADRA ESCOLAR POLIESPORTIVA - SEE/MG

__________________

  • Município: Delfinópolis/MG
  • Descrição: Quadra poliesportiva coberta SEE/MG Modelo - 01
  • Área edificada: 1.144m²
  • Arquitetura: Rodrigo Carvalho Silva
  • Construtora: Construtora & Incorporadora Martins
  • Projetos Elaborados pela ACD Projetos & Engenharia:
    • Projeto de Estruturas Metálicas
    • Projeto de Instalações Prediais Elétricas
EDIFÍCIO COWORKING - CONSTRUTORA SANTIAGO

__________________

  • Município: Passos/MG
  • Descrição: Edifício de uso comercial
  • Área edificada: 1.678,30m²
  • Arquitetura: Nádia Freire Oliveira
  • Construtora: Construtora Santiago
  • Projetos Elaborados pela ACD Projetos & Engenharia*:
    • Projeto de Instalações Prediais Elétricas

*Projeto elaborado como co-autor.

**Responsabilidade Técnica: Nascimento & Dias Engenharia.

EDIFICAÇÃO COMERCIAL

__________________

  • Município: Passos/MG
  • Descrição: Edificação de uso comercial
  • Área edificada: 286,89m²
    • Subsolo: 124,43m²
    • Térreo: 162,46m²
  • Projetos Elaborados pela ACD Projetos & Engenharia:
    • Projeto Arquitetônico
CLÍNICA ODONTOLÓGICA

__________________

  • Município: Passos/MG
  • Descrição: Edifício de uso comercial
  • Área edificada: 343,53m²
  • Arquitetura: Aldo Dias
  • Projetos Elaborados pela ACD Projetos & Engenharia*:
    • Projeto de Instalações Prediais Hidrossanitárias

*Projeto elaborado como co-autor.

**Responsabilidade Técnica: Nascimento & Dias Engenharia.

PROJETOS RESIDENCIAIS
RESIDÊNCIA UNIFAMILIAR TÉRREA

__________________

  • Município: Passos/MG
  • Descrição: Residência térra unifamiliar
  • Área edificada: 270m²
  • Arquitetura: Juliana Battaglini Cintra

 

  • Projetos Elaborados pela ACD Projetos & Engenharia*:
    • Projeto de Instalações Elétricas
    • Projeto de Instalações Hidrossanitárias

*Projetos elaborados como co-autor

**Responsabilidade Técnica: Eng.° Juliano da Costa Lima

RESIDÊNCIA UNIFAMILIAR SOBRADO

__________________

  • Município: Passos/MG
  • Descrição: Residência sobrado unifamiliar
  • Área edificada: 388m²
  • Arquitetura: Ilton Amélio de Resende Junior

 

  • Projetos Elaborados pela ACD Projetos & Engenharia:
    • Projeto de Instalações Prediais Elétricas
    • Projeto de Instalações Prediais Hidrossanitárias
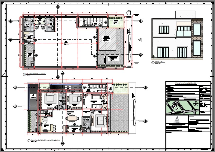
EDIFICAÇÃO DE USO MISTO

__________________

  • Município: Passos/MG
  • Descrição: Edificação de uso comercial no pavimento térreo e             residencial no pavimento superior
  • Área Edificada: 256,60m²
    • Comercial: 128,10m²
    • Residencial: 128,50m²
  • Projetos Elaborados pela ACD Projetos & Engenharia:
    • Projeto Arquitetônico
    • Projeto Estrutural da Fundação
    • Projeto Estrutural da Superestrutura
RESIDENCIA MULTIFAMILIAR - EDIFÍCIO VIVENDAS

__________________

  • Município: Passos/MG
  • Descrição: Edifício residencial multifamiliar
  • Área edificada: 2353,59m²
  • Arquitetura: Loureiro Arquitetura & Incorporação
  • Construtora: ACV Engenharia e Construtora
  • Projetos Elaborados pela ACD Projetos & Engenharia*:
    • Projeto de Instalações Prediais Elétricas
    • Projeto de Instalações Prediais Hidrossanitárias

*Projetos elaborados como co-autor.

**Responsabilidade Técnica: ACV Engenharia e Construtora.